Skip to Main Content

COGIS

Facility Detail

COGIS - WELL SCOUT CARD

Click image to view related facilities. Related  Click image to view inspection information. InspClick image to view MIT information. MITClick image to access interactive map at well/facility location. GISClick image to view imaged documents for this well/facility. DocClick image to view imaged documents for this well/facility. COAClick image to view wellbore completion diagram. WellboreClick image to search for orders within this facility's section. OrdersClick image to view bradenhead scoutcard data. Bradenhead
 Surface Location
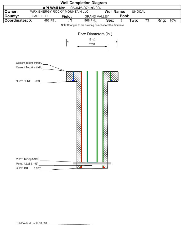
 API# 05-045-07130
Well Classification: GW Status: PR - 3/29/1998
Well Name/No:UNOCAL #GM 41-3
(Click Well Name for Production Data)
Click Here for Transporter Gatherer Info
Operator:TEP ROCKY MOUNTAIN LLC - 96850
(Click Operator Name for Company Detail Report)
Federal Or State Lease #:13345
Facility Status:PRStatus Date3/29/1998
FacilityID:211370LocationID:323965
County:GARFIELD #045Location:NENE 3 7S96W 6
Field:GRAND VALLEY - #31290Elevation:5264 ft.
Basin:PICEANCE BASIN  
Planned Location:968FNL  493 FELLat/Long: 39.470609 / -108.087286Lat/Long Source: Calculated From Footages
As Drilled Location:Footages Not AvailableLat/Long: 39.470663 / -108.086969Lat/Long Source: Field Measured
 Wellbore And Formation Details -- select either a wellbore Or formation to expand.
 

Wellbore #00             Wellbore Classification: GW             Status: PR - 3/29/1998             Measured TD: 6338 ft.    Vertical TD: 0 ft.

 Wellbore Data for Original WellboreWellbore Classification: GW        PR - 3/29/1998
Wellbore Permit
Permit #:970603 Expiration Date:8/3/1998
Proposed Depth/Form:
Surface Mineral Owner Same:Not available
Mineral Owner:FEESurface Owner:Not available
Unit: Unit Number:COC 50760
Formation And Spacing:Code: WMFK , Formation: WILLIAMS FORK , Order: 510 , Unit Acreage: 320, Drill Unit: N2

Wellbore Completed
Completion Date:3/26/1998
Measured TD:6338 ft.Measured PB depth:0 ft.
True Vertical TD:0 ft.True Vertical PB depth:
Casing:String Type: SURF, Hole Size: 13.5 in., Size: 9.625 in., Top: 0 ft., Depth: 633 ft., Weight: , Citings Type: HISTORICAL
Cement:Sacks: 350, Top: 0 ft., Bottom: , Determination Method:
Casing:String Type: 1ST, Hole Size: 7.875 in., Size: 5.5 in., Top: 0 ft., Depth: 6328 ft., Weight: , Citings Type: HISTORICAL
Cement:Sacks: 0, Top: 0 ft., Bottom: , Determination Method:
FormationInterval TopLog BottomCoredDSTs
MESAVERDE3218 ft.
CAMEO COAL5736 ft.
ROLLINS6226 ft.

Formation WFCM                     Formation Classification:  GW                     Status:  PR - 3/29/1998                 Interval Top: 4523 ft.    Interval Bottom: 6156 ft.

 Completed Information for Formation WILLIAMS FORK - CAMEO
1st Production Date:N/AChoke Size:0.500 in.
Formation Name:WILLIAMS FORK - CAMEOCommingled:No
Production Method:FLOWING
Open Hole Completion:No
Formation Treatment
Treatment Date:3/26/1998
Treatment Summary:
Tubing Size:2.375 in.Tubing Setting Depth:5973 ft.
Tubing Packer Depth:Tubing Multiple Packer:
Open Hole Top:Open Hole Bottom:
Initial Test Data:
Test Date:11/7/2001Test Method:FLOWING
Hours Tested:24Gas Type:DRY
Gas Disposal:SOLD
Test TypeMeasure
BBLS_H2O 0
BBLS_OIL 0
BTU_GAS 1022
CALC_BBLS_H2O 0
CALC_BBLS_OIL 0
CALC_MCF_GAS 280
CASING_PRESS 320
MCF_GAS 280
TUBING_PRESS 760
Perforation Data:
Interval Top:4523 ft.# Of Holes:70
Interval Bottom:6156 ft.Hole Size:0.3 in.

Formation WMFK                     Formation Classification:  GW                     Status:  CM - 3/29/1998

 Completed Information for Formation WILLIAMS FORK
1st Production Date:3/26/1998Choke Size:0.000 in.
Formation Name:WILLIAMS FORKCommingled:
Production Method:
Open Hole Completion:
Tubing Size:Tubing Setting Depth:
Tubing Packer Depth:Tubing Multiple Packer:
Open Hole Top:Open Hole Bottom:
No Initial Test Data was found for formation WMFK.
No Perforation Data was found for formation WMFK.
Primary Well Designation:
None      i
            All DesignationsDate
Reported PluggedN 
Out Of Service RepurposedN 
Out Of ServiceN 
Inactive ExceptionN 
Noticed InactiveN 
Defined InactiveN 
Low ProducingN 

BOE/MCFE/GOR Calculations
Production for Previous 12 Months
October 2024 - September 2025i
Total Oil Produced (Barrels)10
Total Gas Produced (MCF)5494
GOR549400
GOR DeterminationMCFE
Average BOE per Day2.619
Average MCFE per Day15.217

 Federal Financial Assurance  i 

 Tribal Well  i No