Skip to Main Content

COGIS

Facility Detail

COGIS - WELL SCOUT CARD

Click image to view related facilities. Related  Click image to view inspection information. InspClick image to view MIT information. MITGIS Map GISOld GIS Map Old GISClick image to view imaged documents for this well/facility. DocClick image to view imaged documents for this well/facility. COAClick image to view wellbore completion diagram. WellboreClick image to search for orders within this facility's section. OrdersClick image to view bradenhead scoutcard data. Bradenhead
 Surface Location
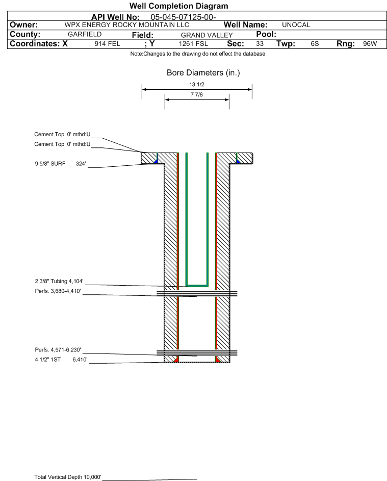
 API# 05-045-07125
Well Classification: GW Status: PR - 5/12/2005
Well Name/No:UNOCAL #GM 202-33
(Click Well Name for Production Data)
Click Here for Transporter Gatherer Info
Operator:TEP ROCKY MOUNTAIN LLC - 96850
(Click Operator Name for Company Detail Report)
Federal Or State Lease #:12591
Facility Status:PRStatus Date5/12/2005
FacilityID:211365LocationID:335250
County:GARFIELD #045Location:SESE 33 6S96W 6
Field:GRAND VALLEY - #31290Elevation:5390 ft.
Basin:PICEANCE BASIN  
Planned Location:1261FSL  914 FELLat/Long: 39.476618 / -108.107166Lat/Long Source: Calculated From Footages
As Drilled Location:Footages Not AvailableLat/Long: 39.476761 / -108.107086Lat/Long Source: Field Measured
 Wellbore And Formation Details -- select either a wellbore Or formation to expand.
 

Wellbore #00             Wellbore Classification: GW             Status: PR - 5/12/2005             Measured TD: 6415 ft.    Vertical TD: 0 ft.

 Wellbore Data for Original WellboreWellbore Classification: GW        PR - 5/12/2005
Wellbore Permit
Permit #:960875 Expiration Date:12/5/1997
Proposed Depth/Form:
Surface Mineral Owner Same:Not available
Mineral Owner:FEESurface Owner:Not available
Unit: Unit Number: 
Formation And Spacing:Code: WFCM , Formation: WILLIAMS FORK - CAMEO , Order: 139 , Unit Acreage: 160, Drill Unit: SE4

Wellbore Completed
Completion Date:5/16/1997
Measured TD:6415 ft.Measured PB depth:0 ft.
True Vertical TD:0 ft.True Vertical PB depth:
Casing:String Type: SURF, Hole Size: 13.5 in., Size: 9.625 in., Top: 0 ft., Depth: 324 ft., Weight: , Citings Type: HISTORICAL
Cement:Sacks: 175, Top: 0 ft., Bottom: , Determination Method:
Casing:String Type: 1ST, Hole Size: 7.875 in., Size: 4.5 in., Top: 0 ft., Depth: 6410 ft., Weight: , Citings Type: HISTORICAL
Cement:Sacks: 0, Top: 0 ft., Bottom: , Determination Method:
FormationInterval TopLog BottomCoredDSTs
FORT UNION1975 ft.
MESAVERDE3264 ft.
CAMEO COAL5840 ft.
ROLLINS6309 ft.

Formation WFCM                     Formation Classification:  GW                     Status:  PR - 6/6/1997                  Interval Top: 4571 ft.    Interval Bottom: 6230 ft.

 Completed Information for Formation WILLIAMS FORK - CAMEO
1st Production Date:5/16/1997Choke Size:0.000 in.
Formation Name:WILLIAMS FORK - CAMEOCommingled:
Production Method:
Open Hole Completion:
Tubing Size:Tubing Setting Depth:
Tubing Packer Depth:Tubing Multiple Packer:
Open Hole Top:Open Hole Bottom:
No Initial Test Data was found for formation WFCM.
Perforation Data:
Interval Top:4571 ft.# Of Holes:147
Interval Bottom:6230 ft.Hole Size:

Formation WMFK                     Formation Classification:  GW                     Status:  CM - 5/12/2005                 Interval Top: 3680 ft.    Interval Bottom: 4410 ft.

 Completed Information for Formation WILLIAMS FORK
1st Production Date:N/AChoke Size:0.750 in.
Formation Name:WILLIAMS FORKCommingled:No
Production Method:FLOWING
Open Hole Completion:No
Formation Treatment
Treatment Date:5/16/1997
Treatment Summary:1000 GALS 7-1/2% HCL 212000# 20/40, 3751 BBLS SLICK WATER 148 TONS CO2 (SUMMARY) PERFS 4050-4068 SQUEEZED WITH 75 SKS CMT
Tubing Size:2.375 in.Tubing Setting Depth:4104 ft.
Tubing Packer Depth:Tubing Multiple Packer:
Open Hole Top:Open Hole Bottom:
Initial Test Data:
Test Date:5/12/2005Test Method:FLOWING
Hours Tested:24Gas Type:
Gas Disposal:SOLD
Test TypeMeasure
BBLS_H2O 0
BBLS_OIL 0
CALC_BBLS_H2O 0
CALC_BBLS_OIL 0
CALC_MCF_GAS 132
CASING_PRESS 429
MCF_GAS 132
TUBING_PRESS 226
Perforation Data:
Interval Top:3680 ft.# Of Holes:29
Interval Bottom:4410 ft.Hole Size:0.34 in.
Primary Well Designation:
None      i
            All DesignationsDate
Reported PluggedN 
Out Of Service RepurposedN 
Out Of ServiceN 
Inactive ExceptionN 
Noticed InactiveN 
Defined InactiveN 
Low ProducingN 

BOE/MCFE/GOR Calculations
Production for Previous 12 Months
February 2025 - January 2026i
Total Oil Produced (Barrels)18
Total Gas Produced (MCF)14931
GOR829500
GOR DeterminationMCFE
Average BOE per Day7.104
Average MCFE per Day41.216

 Federal Financial Assurance  i 

 Tribal Well  i No