Skip to Main Content

COGIS

Facility Detail

COGIS - WELL SCOUT CARD

Click image to view related facilities. Related  Click image to view inspection information. InspClick image to view MIT information. MITClick image to access interactive map at well/facility location. GISClick image to view imaged documents for this well/facility. DocClick image to view imaged documents for this well/facility. COAClick image to view wellbore completion diagram. WellboreClick image to search for orders within this facility's section. OrdersClick image to view bradenhead scoutcard data. Bradenhead
 Surface Location
 API# 05-045-07105
Well Classification: GW Status: PR - 2/8/2005
Well Name/No:UNOCAL #GM 11-33
(Click Well Name for Production Data)
Click Here for Transporter Gatherer Info
Operator:TEP ROCKY MOUNTAIN LLC - 96850
(Click Operator Name for Company Detail Report)
Federal Or State Lease #:13363
Facility Status:PRStatus Date2/8/2005
FacilityID:211345LocationID:335144
County:GARFIELD #045Location:NWNW 33 6S96W 6
Field:GRAND VALLEY - #31290Elevation:5440 ft.
Basin:PICEANCE BASIN  
Planned Location:0FL  0 FLLat/Long: 39.486603 / -108.120828Lat/Long Source: Calculated From Footages
As Drilled Location:Footages Not AvailableLat/Long: 39.486603 / -108.120828Lat/Long Source: Calculated From Footages
 Wellbore And Formation Details -- select either a wellbore Or formation to expand.
 

Wellbore #00             Wellbore Classification: GW             Status: PR - 2/8/2005             Measured TD: 6530 ft.    Vertical TD: 0 ft.

 Wellbore Data for Original WellboreWellbore Classification: GW        PR - 2/8/2005
Wellbore Permit
Permit #:970568 Expiration Date:7/24/1998
Proposed Depth/Form:
Surface Mineral Owner Same:Not available
Mineral Owner:FEESurface Owner:Not available
Unit: Unit Number: 
Formation And Spacing:Code: WFCM , Formation: WILLIAMS FORK - CAMEO , Order: 479-5 , Unit Acreage: 160, Drill Unit: NW4

Wellbore Completed
Completion Date:11/20/1997
Measured TD:6530 ft.Measured PB depth:0 ft.
True Vertical TD:0 ft.True Vertical PB depth:
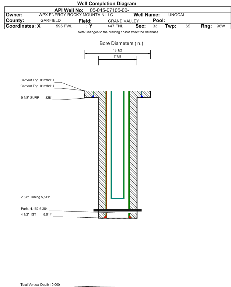
Casing:String Type: SURF, Hole Size: 13.5 in., Size: 9.625 in., Top: 0 ft., Depth: 328 ft., Weight: , Citings Type: HISTORICAL
Cement:Sacks: 200, Top: 0 ft., Bottom: , Determination Method:
Casing:String Type: 1ST, Hole Size: 7.875 in., Size: 4.5 in., Top: 0 ft., Depth: 6514 ft., Weight: , Citings Type: HISTORICAL
Cement:Sacks: 0, Top: 0 ft., Bottom: , Determination Method:
FormationInterval TopLog BottomCoredDSTs
FORT UNION2104 ft.
MESAVERDE3432 ft.
CAMEO COAL5939 ft.
ROLLINS6438 ft.

Formation WFCM                     Formation Classification:  GW                     Status:  PR - 11/23/1997                Interval Top: 4152 ft.    Interval Bottom: 6254 ft.

 Completed Information for Formation WILLIAMS FORK - CAMEO
1st Production Date:11/20/1997Choke Size:0.750 in.
Formation Name:WILLIAMS FORK - CAMEOCommingled:No
Production Method:FLOWING
Open Hole Completion:No
Formation Treatment
Treatment Date:11/20/1997
Treatment Summary:500 GALS 7 1/2% HCL, 88000# 20/40, 1864 BBLS SLICK WATER 88 TONS CO2
Tubing Size:2.375 in.Tubing Setting Depth:5541 ft.
Tubing Packer Depth:Tubing Multiple Packer:
Open Hole Top:Open Hole Bottom:
Initial Test Data:
Test Date:4/4/2005Test Method:FLOWING
Hours Tested:24Gas Type:
Gas Disposal:SOLD
Test TypeMeasure
BBLS_H2O 0
BBLS_OIL 0
CALC_BBLS_H2O 0
CALC_BBLS_OIL 0
CALC_MCF_GAS 91
CASING_PRESS 208
MCF_GAS 91
TUBING_PRESS 645
Perforation Data:
Interval Top:4152 ft.# Of Holes:68
Interval Bottom:6254 ft.Hole Size:0.43 in.

Formation WMFK                     Formation Classification:  GW                     Status:  CM - 2/8/2005

 Completed Information for Formation WILLIAMS FORK
1st Production Date:N/AChoke Size:0.000 in.
Formation Name:WILLIAMS FORKCommingled:
Production Method:
Open Hole Completion:
Tubing Size:Tubing Setting Depth:
Tubing Packer Depth:Tubing Multiple Packer:
Open Hole Top:Open Hole Bottom:
No Initial Test Data was found for formation WMFK.
No Perforation Data was found for formation WMFK.
Primary Well Designation:
None      i
            All DesignationsDate
Reported PluggedN 
Out Of Service RepurposedN 
Out Of ServiceN 
Inactive ExceptionN 
Noticed InactiveN 
Defined InactiveN 
Low ProducingN 

BOE/MCFE/GOR Calculations
Production for Previous 12 Months
November 2024 - October 2025i
Total Oil Produced (Barrels)11
Total Gas Produced (MCF)6112
GOR555636
GOR DeterminationMCFE
Average BOE per Day2.915
Average MCFE per Day16.924

 Federal Financial Assurance  i 

 Tribal Well  i No