Skip to Main Content

COGIS

Facility Detail

COGIS - WELL SCOUT CARD

Click image to view related facilities. Related  Click image to view inspection information. InspClick image to view MIT information. MITClick image to access interactive map at well/facility location. GISClick image to view imaged documents for this well/facility. DocClick image to view imaged documents for this well/facility. COAClick image to view wellbore completion diagram. WellboreClick image to search for orders within this facility's section. OrdersClick image to view bradenhead scoutcard data. Bradenhead
 Surface Location
 API# 05-045-07069
Well Classification: GW Status: PR - 11/1/2021
Well Name/No:COUEY #5-14
(Click Well Name for Production Data)
Click Here for Transporter Gatherer Info
Operator:QB ENERGY OPERATING LLC - 10844
(Click Operator Name for Company Detail Report)
Federal Or State Lease #:12577
Facility Status:PRStatus Date11/1/2021
FacilityID:211310LocationID:334963
County:GARFIELD #045Location:SESW 5 7S92W 6
Field:MAMM CREEK - #52500Elevation:5944 ft.
Basin:PICEANCE BASIN  
Planned Location:600FSL  2129 FWLLat/Long: 39.469801 / -107.691834Lat/Long Source: Calculated From Footages
As Drilled Location:Footages Not AvailableLat/Long: 39.469917 / -107.691634Lat/Long Source: Field Measured
 Wellbore And Formation Details -- select either a wellbore Or formation to expand.
 

Wellbore #00             Wellbore Classification: GW             Status: PR - 11/1/2021             Measured TD: 6028 ft.    Vertical TD: 0 ft.

 Wellbore Data for Original WellboreWellbore Classification: GW        PR - 11/1/2021
Wellbore Permit
Permit #:960462 Expiration Date:6/10/1997
Proposed Depth/Form:
Surface Mineral Owner Same:Not available
Mineral Owner:FEESurface Owner:Not available
Unit: Unit Number: 
Formation And Spacing:Code: MVRD , Formation: MESAVERDE , Order: 0 , Unit Acreage: 0, Drill Unit:

Wellbore Completed
Completion Date:11/11/1996
Measured TD:6028 ft.Measured PB depth:5937 ft.
True Vertical TD:0 ft.True Vertical PB depth:
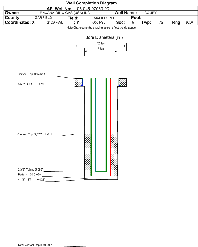
Casing:String Type: SURF, Hole Size: 12.25 in., Size: 8.625 in., Top: 0 ft., Depth: 479 ft., Weight: 32 , Citings Type: ACTUAL
Cement:Sacks: 350, Top: 0 ft., Bottom: 479 ft., Determination Method:
Casing:String Type: 1ST, Hole Size: 7.875 in., Size: 4.5 in., Top: 0 ft., Depth: 6028 ft., Weight: 11.6 , Citings Type: ACTUAL
Cement:Sacks: 1000, Top: 3320 ft., Bottom: 6028 ft., Determination Method: CBL
FormationInterval TopLog BottomCoredDSTs
OHIO CREEK2500 ft.2726 ft.
WILLIAMS FORK2726 ft.

Formation WMFK                     Formation Classification:  GW                     Status:  PR - 11/1/2021                 Interval Top: 4150 ft.    Interval Bottom: 6028 ft.

 Completed Information for Formation WILLIAMS FORK
1st Production Date:8/21/1996Choke Size: 
Formation Name:WILLIAMS FORKCommingled:
Production Method:
Open Hole Completion:
Tubing Size:2.375 in.Tubing Setting Depth:5596 ft.
Tubing Packer Depth:Tubing Multiple Packer:
Open Hole Top:Open Hole Bottom:
Initial Test Data:
Test Date:11/10/2006Test Method:FLOWING
Hours Tested:24Gas Type:
Gas Disposal:SOLD
Test TypeMeasure
BBLS_H2O 35
CASING_PRESS 710
MCF_GAS 915
TUBING_PRESS 600
Perforation Data:
Interval Top:4150 ft.# Of Holes:42
Interval Bottom:6028 ft.Hole Size:0.34 in.
Primary Well Designation:
None      i
            All DesignationsDate
Reported PluggedN 
Out Of Service RepurposedN 
Out Of ServiceN 
Inactive ExceptionN 
Noticed InactiveN 
Defined InactiveN 
Low ProducingN 

BOE/MCFE/GOR Calculations
Production for Previous 12 Months
October 2024 - September 2025i
Total Oil Produced (Barrels)0
Total Gas Produced (MCF)8925
GOR
GOR DeterminationMCFE
Average BOE per Day4.217
Average MCFE per Day24.453

 Federal Financial Assurance  i Y

 Tribal Well  i No