Skip to Main Content

COGIS

Facility Detail

COGIS - WELL SCOUT CARD

Click image to view related facilities. Related  Click image to view inspection information. InspClick image to view MIT information. MITClick image to access interactive map at well/facility location. GISClick image to view imaged documents for this well/facility. DocClick image to view imaged documents for this well/facility. COAClick image to view wellbore completion diagram. WellboreClick image to search for orders within this facility's section. OrdersClick image to view bradenhead scoutcard data. Bradenhead
 Surface Location
 API# 05-045-06992
Well Classification: CBM Status: PR - 8/2/2001
Well Name/No:CLOUGH #RMV 14-29A
(Click Well Name for Production Data)
Click Here for Transporter Gatherer Info
Operator:TEP ROCKY MOUNTAIN LLC - 96850
(Click Operator Name for Company Detail Report)
Federal Or State Lease #:13164
Facility Status:PRStatus Date8/2/2001
FacilityID:211233LocationID:323922
County:GARFIELD #045Location:NENE 29 6S94W 6
Field:RULISON - #75400Elevation:5221 ft.
Basin:PICEANCE BASIN  
Planned Location:954FNL  159 FELLat/Long: 39.500749 / -107.903160Lat/Long Source: Calculated From Footages
As Drilled Location:Footages Not AvailableLat/Long: 39.500862 / -107.903170Lat/Long Source: Field Measured
 Wellbore And Formation Details -- select either a wellbore Or formation to expand.
 

Wellbore #00             Wellbore Classification: CBM             Status: PR - 8/2/2001             Measured TD: 7150 ft.

 Wellbore Data for Original WellboreWellbore Classification: CBM        PR - 8/2/2001
Wellbore Permit
Permit #:950249 Expiration Date:9/9/1995
Proposed Depth/Form:
Surface Mineral Owner Same:Not available
Mineral Owner:FEESurface Owner:Not available
Unit: Unit Number: 
Formation And Spacing:Code: WFCM , Formation: WILLIAMS FORK - CAMEO , Order: 139-27 , Unit Acreage: 320, Drill Unit: N2

Wellbore Completed
Completion Date:8/24/1995
Spud Date:3/22/1995Spud Date Is:ACTUAL
Measured TD:7150 ft.Measured PB depth:
True Vertical TD:True Vertical PB depth:
Log Types:DIFL,COMP Z DENSILOG, COMP NEU, GR, CAL
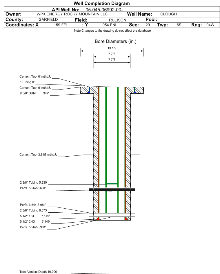
Casing:String Type: SURF, Hole Size: 13.5 in., Size: 9.625 in., Top: , Depth: 347 ft., Weight: 32 , Citings Type: ACTUAL
Cement:Sacks: 150, Top: 0 ft., Bottom: 347 ft., Determination Method: CALC
Casing:String Type: 1ST, Hole Size: 7.875 in., Size: 5.5 in., Top: 0 ft., Depth: 7149 ft., Weight: , Citings Type: HISTORICAL
Cement:Sacks: 0, Top: 0 ft., Bottom: , Determination Method:
Casing:String Type: 2ND, Hole Size: 7.875 in., Size: 5.5 in., Top: , Depth: 7149 ft., Weight: 17 , Citings Type: ACTUAL
Cement:Sacks: 820, Top: 3645 ft., Bottom: 7149 ft., Determination Method: CBL
FormationInterval TopLog BottomCoredDSTs
WASATCH G1528 ft.NN
MESAVERDE3944 ft.NN
CAMEO COAL6654 ft.NN

Formation CMEOC                   Formation Classification:  GW                   Status:  CM - 8/2/2001                  Interval Top: 6544 ft.    Interval Bottom: 6984 ft.

 Completed Information for Formation CAMEO COAL
1st Production Date:8/24/1995Choke Size: 
Formation Name:CAMEO COALCommingled:No
Production Method:FLOWING
Open Hole Completion:No
Formation Treatment
Treatment Date:8/24/1995
Treatment Summary:1ST PR 3-6-96
Tubing Size:Tubing Setting Depth:
Tubing Packer Depth:Tubing Multiple Packer:
Open Hole Top:Open Hole Bottom:
Initial Test Data:
Test Date:3/10/1996Test Method:FLOWING
Hours Tested:24Gas Type:COAL GAS
Gas Disposal:
Test TypeMeasure
BBLS_H2O 2
BBLS_OIL 0
CALC_BBLS_H2O 2
CALC_BBLS_OIL 0
CALC_MCF_GAS 862
MCF_GAS 862
Perforation Data:
Interval Top:6544 ft.# Of Holes:32
Interval Bottom:6984 ft.Hole Size:

Formation WFCM                     Formation Classification:  OW                     Status:  PR - 8/2/2001                  Interval Top: 5262 ft.    Interval Bottom: 6984 ft.

 Completed Information for Formation WILLIAMS FORK - CAMEO
1st Production Date:N/AChoke Size: 
Formation Name:WILLIAMS FORK - CAMEOCommingled:No
Production Method:FLOWING
Open Hole Completion:No
Formation Treatment
Treatment Date:8/24/1995
Treatment Summary:
Tubing Size:2.375 in.Tubing Setting Depth:6875 ft.
Tubing Packer Depth:Tubing Multiple Packer:
Open Hole Top:Open Hole Bottom:
Initial Test Data:
Test Date:8/31/1995Test Method:
Hours Tested:24Gas Type:
Gas Disposal:SOLD
Test TypeMeasure
BBLS_H2O 10
BBLS_OIL 0
CALC_BBLS_H2O 10
CALC_BBLS_OIL 0
CALC_MCF_GAS 1486
CASING_PRESS 1115
MCF_GAS 1486
TUBING_PRESS 1132
Perforation Data:
Interval Top:5262 ft.# Of Holes:64
Interval Bottom:6984 ft.Hole Size:

Formation WMFK                     Formation Classification:  GW                     Status:  CM - 8/2/2001                  Interval Top: 5262 ft.    Interval Bottom: 5604 ft.

 Completed Information for Formation WILLIAMS FORK
1st Production Date:N/AChoke Size: 
Formation Name:WILLIAMS FORKCommingled:No
Production Method:FLOWING
Open Hole Completion:No
Formation Treatment
Treatment Date:8/24/1995
Treatment Summary:750 GAL 7 1/2% HCL, 75000# 20/40, 654 BBL GEL. TURNED TO SALE 11-16-99.
Tubing Size:2.375 in.Tubing Setting Depth:5230 ft.
Tubing Packer Depth:Tubing Multiple Packer:
Open Hole Top:Open Hole Bottom:
Initial Test Data:
Test Date:11/18/1999Test Method:FLOWING
Hours Tested:24Gas Type:
Gas Disposal:
Test TypeMeasure
BBLS_H2O 5
BBLS_OIL 0
CALC_BBLS_H2O 5
CALC_BBLS_OIL 0
CALC_MCF_GAS 856
MCF_GAS 856
Perforation Data:
Interval Top:5262 ft.# Of Holes:16
Interval Bottom:5604 ft.Hole Size:
Primary Well Designation:
None      i
            All DesignationsDate
Reported PluggedN 
Out Of Service RepurposedN 
Out Of ServiceN 
Inactive ExceptionN 
Noticed InactiveN 
Defined InactiveN 
Low ProducingN 

BOE/MCFE/GOR Calculations
Production for Previous 12 Months
November 2024 - October 2025i
Total Oil Produced (Barrels)12
Total Gas Produced (MCF)10892
GOR907666
GOR DeterminationMCFE
Average BOE per Day5.179
Average MCFE per Day30.044

 Federal Financial Assurance  i 

 Tribal Well  i No