Skip to Main Content

COGIS

Facility Detail

COGIS - WELL SCOUT CARD

Click image to view related facilities. Related  Click image to view inspection information. InspClick image to view MIT information. MITClick image to access interactive map at well/facility location. GISClick image to view imaged documents for this well/facility. DocClick image to view imaged documents for this well/facility. COAClick image to view wellbore completion diagram. WellboreClick image to search for orders within this facility's section. OrdersClick image to view bradenhead scoutcard data. Bradenhead
 Surface Location
 API# 05-045-06877
Well Classification: GW Status: PR - 12/1/2010
Well Name/No:RULISON DEEP #1
(Click Well Name for Production Data)
Click Here for Transporter Gatherer Info
Operator:TEP ROCKY MOUNTAIN LLC - 96850
(Click Operator Name for Company Detail Report)
Federal Or State Lease #:13220
Facility Status:PRStatus Date12/1/2010
FacilityID:211118LocationID:335269
County:GARFIELD #045Location:SWSW 27 6S94W 6
Field:RULISON - #75400Elevation:5335 ft.
Basin:PICEANCE BASIN  
Planned Location:600FSL  600 FWLLat/Long: 39.490689 / -107.881320Lat/Long Source: Calculated From Footages
As Drilled Location:Footages Not AvailableLat/Long: 39.490606 / -107.881423Lat/Long Source: Field Measured
 Wellbore And Formation Details -- select either a wellbore Or formation to expand.
 

Wellbore #00             Wellbore Classification: GW             Status: PR - 12/1/2010             Measured TD: 14278 ft.    Vertical TD: 0 ft.

 Wellbore Data for Original WellboreWellbore Classification: GW        PR - 12/1/2010
Wellbore Permit
Permit #:940899 Expiration Date:1/15/1995
Proposed Depth/Form:
Surface Mineral Owner Same:Not available
Mineral Owner:FEESurface Owner:Not available
Unit: Unit Number: 
Formation And Spacing:Code: WMFK , Formation: WILLIAMS FORK , Order: 0 , Unit Acreage: 320, Drill Unit: W2

Wellbore Completed
Completion Date:12/2/1994
Spud Date:8/20/1994Spud Date Is:ACTUAL
Measured TD:14278 ft.Measured PB depth:0 ft.
True Vertical TD:0 ft.True Vertical PB depth:
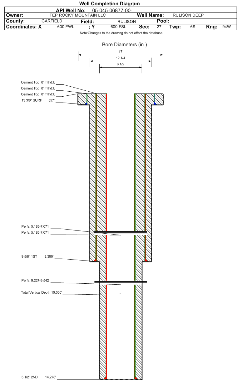
Casing:String Type: SURF, Hole Size: 17 in., Size: 13.375 in., Top: 0 ft., Depth: 557 ft., Weight: 48 , Citings Type: ACTUAL
Cement:Sacks: 450, Top: 0 ft., Bottom: 557 ft., Determination Method: CALC
Casing:String Type: 1ST, Hole Size: 12.25 in., Size: 9.625 in., Top: 0 ft., Depth: 8390 ft., Weight: 47 , Citings Type: ACTUAL
Cement:Sacks: 2500, Top: , Bottom: 8390 ft., Determination Method:
Casing:String Type: 2ND, Hole Size: 8.5 in., Size: 5.5 in., Top: 0 ft., Depth: 14278 ft., Weight: 20&23 , Citings Type: ACTUAL
Cement:Sacks: 400, Top: , Bottom: 14278 ft., Determination Method:
Additional Cement:String Type: S.C. 2.1 , Top: , Depth: 13215 ft., Bottom: , Sacks: 450, Method: Squeeze
Additional Cement:String Type: S.C. 2.2 , Top: 4900 ft., Depth: 7120 ft., Bottom: 7120 ft., Sacks: 1300, Method: Squeeze
FormationInterval TopLog BottomCoredDSTs
MESAVERDE3869 ft.
CAMEO COAL6638 ft.
ROLLINS7529 ft.
COZZETTE7876 ft.
CORCORAN8147 ft.
MANCOS8278 ft.
NIOBRARA11699 ft.
FRONTIER12869 ft.
MOWRY13004 ft.
DAKOTA13300 ft.
MORRISON13519 ft.
ENTRADA14098 ft.

Formation MNCS                     Formation Classification:  GW                     Status:  SI - 11/1/2025                 Interval Top: 9227 ft.    Interval Bottom: 9542 ft.

 Completed Information for Formation MANCOS
1st Production Date:N/AChoke Size: 
Formation Name:MANCOSCommingled:No
Production Method:
Open Hole Completion:
Tubing Size:Tubing Setting Depth:
Tubing Packer Depth:Tubing Multiple Packer:
Open Hole Top:Open Hole Bottom:
No Initial Test Data was found for formation MNCS.
Perforation Data:
Interval Top:9227 ft.# Of Holes:140
Interval Bottom:9542 ft.Hole Size:

Formation WFCM                     Formation Classification:  GW                     Status:  PR - 12/1/2010                 Interval Top: 5185 ft.    Interval Bottom: 7071 ft.

 Completed Information for Formation WILLIAMS FORK - CAMEO
1st Production Date:N/AChoke Size: 
Formation Name:WILLIAMS FORK - CAMEOCommingled:
Production Method:
Open Hole Completion:
Tubing Size:Tubing Setting Depth:
Tubing Packer Depth:Tubing Multiple Packer:
Open Hole Top:Open Hole Bottom:
No Initial Test Data was found for formation WFCM.
Perforation Data:
Interval Top:5185 ft.# Of Holes:
Interval Bottom:7071 ft.Hole Size:

Formation WMFK                     Formation Classification:  GW                     Status:  CM - 12/19/1995                Interval Top: 5185 ft.    Interval Bottom: 7071 ft.

 Completed Information for Formation WILLIAMS FORK
1st Production Date:3/15/1996Choke Size:1,864.000 in.
Formation Name:WILLIAMS FORKCommingled:
Production Method:
Open Hole Completion:
Tubing Size:Tubing Setting Depth:
Tubing Packer Depth:Tubing Multiple Packer:
Open Hole Top:Open Hole Bottom:
No Initial Test Data was found for formation WMFK.
Perforation Data:
Interval Top:5185 ft.# Of Holes:
Interval Bottom:7071 ft.Hole Size:
Primary Well Designation:
None      i
            All DesignationsDate
Reported PluggedN 
Out Of Service RepurposedN 
Out Of ServiceN 
Inactive ExceptionN 
Noticed InactiveN 
Defined InactiveN 
Low ProducingN 

BOE/MCFE/GOR Calculations
Production for Previous 12 Months
November 2024 - October 2025i
Total Oil Produced (Barrels)24
Total Gas Produced (MCF)14165
GOR590208
GOR DeterminationMCFE
Average BOE per Day6.765
Average MCFE per Day39.218

 Federal Financial Assurance  i 

 Tribal Well  i No