|
|
| |
|
|
|
|
Wellbore #00 Wellbore Classification: GW Status: PR - 1/26/2015 Measured TD: 6920 ft. Vertical TD: 0 ft.| Wellbore Data for Original Wellbore | Wellbore Classification: GW PR - 1/26/2015 | | Wellbore Permit | | | Permit #: | 931603 | Expiration Date: | 2/26/1994 | | Proposed Depth/Form: | | | Surface Mineral Owner Same: | Not available | | Mineral Owner: | FEE | Surface Owner: | Not available | | Unit: | | Unit Number: | | | Formation And Spacing: | Code: WFCM , Formation: WILLIAMS FORK - CAMEO , Order: 0 , Unit Acreage: 160, Drill Unit: NE4 |
| | |
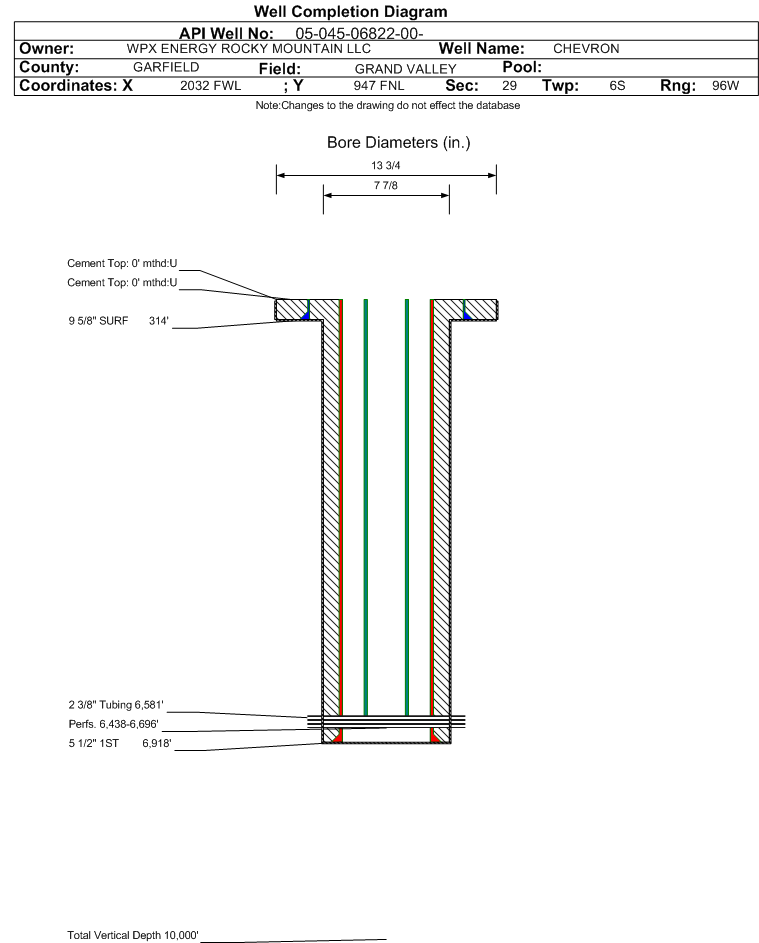
| Wellbore Completed | | Completion Date: | 11/1/1994 | | Measured TD: | 6920 ft. | Measured PB depth: | 0 ft. | | True Vertical TD: | 0 ft. | True Vertical PB depth: | | | Casing: | String Type: SURF, Hole Size: 13.75 in., Size: 9.625 in., Top: 0 ft., Depth: 314 ft., Weight: , Citings Type: HISTORICAL | | Cement: | Sacks: 130, Top: 0 ft., Bottom: , Determination Method: | | Casing: | String Type: 1ST, Hole Size: 7.875 in., Size: 5.5 in., Top: 0 ft., Depth: 6918 ft., Weight: , Citings Type: HISTORICAL | | Cement: | Sacks: 0, Top: 0 ft., Bottom: , Determination Method: | | Formation | Interval Top | Log Bottom | Cored | DSTs | | FORT UNION | 2351 ft. | | | | | MESAVERDE | 3758 ft. | | | | | CAMEO COAL | 6300 ft. | | | | | ROLLINS | 6771 ft. | | | |
Formation WFCM Formation Classification: GW Status: PR - 1/26/2015 Interval Top: 6438 ft. Interval Bottom: 6696 ft.| Completed Information for Formation WILLIAMS FORK - CAMEO | | 1st Production Date: | 11/1/1994 | Choke Size: | | | Formation Name: | WILLIAMS FORK - CAMEO | Commingled: | No | | Production Method: | | | Open Hole Completion: | No |
| | Formation Treatment | | Treatment Type: | FRACTURE STIMULATION | | Treatment Date: | 9/16/2013 | Treatment End Date: | 9/16/2013 | | Treatment Summary: | 1987 Gals 7 1/2% HCL; 235600#40/70 Sand; 6532 Bbls Slickwater; (Summary)
*All flowback water entries are total estimates based on comingled volumes.
This work was for a Gross interval change.
| | Total fluid used in treatment (bbls): | 6567 | Max pressure during treatment (psi): | 5867 | | Total gas used in treatment (mcf): | 7270 | Fluid density (lbs/gal): | 8.43 | | Type Of gas: | NITROGEN | Number Of staged intervals: | 1 | | Total acid used in treatment (bbls): | 35 | Min frac gradient (psi/ft): | 0.69 | | Recycled water used in treatment (bbls): | 6533 | Total flowback volume recovered (bbls): | 3973 | | Fresh water used in treatment (bbls): | | Disposition method For flowback: | RECYCLE | | Total proppant used (lbs): | 235600 | Green completions techniques utilized: | Yes | | Reason green techniques Not utilized: |
| | Tubing Size: | 2.375 in. | Tubing Setting Depth: | 6581 ft. | | Tubing Packer Depth: | | Tubing Multiple Packer: | | | Open Hole Top: | | Open Hole Bottom: | | | Initial Test Data: | | Test Date: | 11/30/2013 | Test Method: | flowing | | Hours Tested: | 24 | Gas Type: | DRY | | Gas Disposal: | SOLD | |
| Test Type | Measure |
|---|
| CALC_MCF_GAS | 109 | | CASING_PRESS | 375 | | MCF_GAS | 109 | | TUBING_PRESS | 78 |
| | Perforation Data: | | Interval Top: | 6438 ft. | # Of Holes: | 30 | | Interval Bottom: | 6696 ft. | Hole Size: | 0.35 in. |
|
|
|
|
|
|
|
| Reported Plugged | N | |
| Out Of Service Repurposed | N | |
| Out Of Service | N | |
| Inactive Exception | N | |
| Noticed Inactive | N | |
| Defined Inactive | N | |
| Low Producing | N | |
| Total Oil Produced (Barrels) | 15 |
| Total Gas Produced (MCF) | 11273 |
| GOR | 751533 |
| GOR Determination | MCFE |
| Average BOE per Day | 5.368 |
| Average MCFE per Day | 31.137 |
| Federal Financial Assurance | i | |
|
|