Skip to Main Content

COGIS

Facility Detail

COGIS - WELL SCOUT CARD

Click image to view related facilities. Related  Click image to view inspection information. InspClick image to view MIT information. MITClick image to access interactive map at well/facility location. GISClick image to view imaged documents for this well/facility. DocClick image to view imaged documents for this well/facility. COAClick image to view wellbore completion diagram. WellboreClick image to search for orders within this facility's section. OrdersClick image to view bradenhead scoutcard data. Bradenhead
 Surface Location
 API# 05-045-06690
Well Classification: GW Status: PR - 10/24/2002
Well Name/No:MITCHELL #GV 75-3
(Click Well Name for Production Data)
Click Here for Transporter Gatherer Info
Operator:TEP ROCKY MOUNTAIN LLC - 96850
(Click Operator Name for Company Detail Report)
Federal Or State Lease #:12657
Facility Status:PRStatus Date10/24/2002
FacilityID:210932LocationID:311559
County:GARFIELD #045Location:NESE 3 7S95W 6
Field:PARACHUTE - #67350Elevation:5830 ft.
Basin:PICEANCE BASIN  
Planned Location:1810FSL  1125 FELLat/Long: 39.464509 / -107.978932Lat/Long Source: Calculated From Footages
As Drilled Location:Footages Not AvailableLat/Long: 39.464423 / -107.978973Lat/Long Source: Field Measured
 Wellbore And Formation Details -- select either a wellbore Or formation to expand.
 

Wellbore #00             Wellbore Classification: GW             Status: PR - 10/24/2002             Measured TD: 7550 ft.

 Wellbore Data for Original WellboreWellbore Classification: GW        PR - 10/24/2002
Wellbore Permit
Permit #:900687 Expiration Date:10/30/1990
Proposed Depth/Form:
Surface Mineral Owner Same:Not available
Mineral Owner:FEESurface Owner:Not available
Unit: Unit Number: 
Formation And Spacing:Code: WFCM , Formation: WILLIAMS FORK - CAMEO , Order: 0 , Unit Acreage: 640, Drill Unit: ALL

Wellbore Completed
Completion Date:10/21/2002
Spud Date:7/4/1990Spud Date Is:ACTUAL
Measured TD:7550 ft.Measured PB depth:7402 ft.
True Vertical TD:True Vertical PB depth:
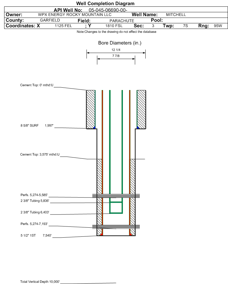
Log Types:DUAL INDUCTION; COMPENSATED DENSITY
Casing:String Type: SURF, Hole Size: 12.25 in., Size: 8.625 in., Top: , Depth: 1997 ft., Weight: 24 , Citings Type: ACTUAL
Cement:Sacks: 880, Top: 0 ft., Bottom: 1997 ft., Determination Method:
Casing:String Type: 1ST, Hole Size: 7.875 in., Size: 5.5 in., Top: , Depth: 7540 ft., Weight: 17 , Citings Type: ACTUAL
Cement:Sacks: 1030, Top: 3575 ft., Bottom: 7540 ft., Determination Method: CBL
FormationInterval TopLog BottomCoredDSTs
WASATCH G1803 ft.NN
MESAVERDE3987 ft.NN
CAMEO COAL6745 ft.NN
ROLLINS7270 ft.NN

Formation WFCM                     Formation Classification:  GW                     Status:  PR - 7/25/2004                 Interval Top: 5274 ft.    Interval Bottom: 5585 ft.

 Completed Information for Formation WILLIAMS FORK - CAMEO
1st Production Date:N/AChoke Size: 
Formation Name:WILLIAMS FORK - CAMEOCommingled:No
Production Method:FLOWING
Open Hole Completion:No
Formation Treatment
Treatment Date:10/21/2002
Treatment Summary:
Tubing Size:2.375 in.Tubing Setting Depth:6403 ft.
Tubing Packer Depth:Tubing Multiple Packer:
Open Hole Top:Open Hole Bottom:
Initial Test Data:
Test Date:7/25/2004Test Method:
Hours Tested:Gas Type:
Gas Disposal:SOLD
Test TypeMeasure
CALC_MCF_GAS 336
CASING_PRESS 658
MCF_GAS 672
TUBING_PRESS 510
Perforation Data:
Interval Top:5274 ft.# Of Holes:230
Interval Bottom:5585 ft.Hole Size:0.34 in.

Formation WMFK                     Formation Classification:  GW                     Status:  CM - 10/24/2002                Interval Top: 5274 ft.    Interval Bottom: 7193 ft.

 Completed Information for Formation WILLIAMS FORK
1st Production Date:N/AChoke Size:0.250 in.
Formation Name:WILLIAMS FORKCommingled:No
Production Method:FLOWING
Open Hole Completion:No
Formation Treatment
Treatment Date:10/21/2002
Treatment Summary:7021-7193' ABANDONED; 6787-6929;1000 GAL ACID,7076BBL GEL,200000#SAND;6394-6619';1000 GAL ACID,2460 BBL GEL,289000#SAND;5690-5898'750 GAL 7.5% HCL;138655#20/40 SAND&3157 BBL SLICK WTR;5274-5585';750 GAL7.5% HCL;171,961#20/40 SND & 3778 BBL SLK WTR;CONT
Tubing Size:2.375 in.Tubing Setting Depth:5836 ft.
Tubing Packer Depth:Tubing Multiple Packer:
Open Hole Top:Open Hole Bottom:
Initial Test Data:
Test Date:10/24/2002Test Method:FLOEING
Hours Tested:24Gas Type:DRY
Gas Disposal:SOLD
Test TypeMeasure
CALC_MCF_GAS 672
CASING_PRESS 770
MCF_GAS 672
TUBING_PRESS 584
Perforation Data:
Interval Top:5274 ft.# Of Holes:361
Interval Bottom:7193 ft.Hole Size:0.34 in.

Sidetrack #01             Wellbore Classification:              Status: PR - 10/24/2002             Measured TD:

 Wellbore Data for Sidetrack #01Wellbore Classification:         PR - 10/24/2002
Wellbore Permit
Permit #:Expiration Date:N/A
Proposed Depth/Form:
Surface Mineral Owner Same:
Mineral Owner:Surface Owner:
Unit: Unit Number: 

Wellbore Completed
Completion Date:N/A
Measured TD:Measured PB depth:
True Vertical TD:True Vertical PB depth:
  No formation data to display.
Primary Well Designation:
None      i
            All DesignationsDate
Reported PluggedN 
Out Of Service RepurposedN 
Out Of ServiceN 
Inactive ExceptionN 
Noticed InactiveN 
Defined InactiveN 
Low ProducingN 

BOE/MCFE/GOR Calculations
Production for Previous 12 Months
November 2024 - October 2025i
Total Oil Produced (Barrels)10
Total Gas Produced (MCF)8049
GOR804900
GOR DeterminationMCFE
Average BOE per Day3.833
Average MCFE per Day22.236

 Federal Financial Assurance  i 

 Tribal Well  i No