Skip to Main Content

COGIS

Facility Detail

COGIS - WELL SCOUT CARD

Click image to view related facilities. Related  Click image to view inspection information. InspClick image to view MIT information. MITClick image to access interactive map at well/facility location. GISClick image to view imaged documents for this well/facility. DocClick image to view imaged documents for this well/facility. COAClick image to view wellbore completion diagram. WellboreClick image to search for orders within this facility's section. OrdersClick image to view bradenhead scoutcard data. Bradenhead
 Surface Location
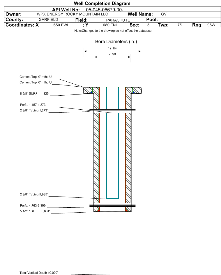
 API# 05-045-06679
Well Classification: GW Status: PR - 2/13/2014
Well Name/No:GV #81-5
(Click Well Name for Production Data)
Click Here for Transporter Gatherer Info
Operator:TEP ROCKY MOUNTAIN LLC - 96850
(Click Operator Name for Company Detail Report)
Federal Or State Lease #:
Facility Status:PRStatus Date2/13/2014
FacilityID:210921LocationID:334627
County:GARFIELD #045Location:NWNW 5 7S95W 6
Field:PARACHUTE - #67350Elevation:5160 ft.
Basin:PICEANCE BASIN  
Planned Location:680FNL  650 FWLLat/Long: 39.472019 / -108.028774Lat/Long Source: Calculated From Footages
As Drilled Location:Footages Not AvailableLat/Long: 39.472034 / -108.028788Lat/Long Source: Field Measured
 Wellbore And Formation Details -- select either a wellbore Or formation to expand.
 

Wellbore #00             Wellbore Classification: GW             Status: PR - 2/13/2014             Measured TD: 6679 ft.    Vertical TD: 0 ft.

 Wellbore Data for Original WellboreWellbore Classification: GW        PR - 2/13/2014
Wellbore Permit
Permit #:20052972 Expiration Date:9/15/2006
Proposed Depth/Form:6679 ft.
Surface Mineral Owner Same:Yes
Mineral Owner:FEESurface Owner:FEE
Unit: Unit Number: 
Formation And Spacing:Code: WFCM , Formation: WILLIAMS FORK - CAMEO , Order: 0 , Unit Acreage: 320, Drill Unit: N2
Formation And Spacing:Code: WSTC , Formation: WASATCH , Order: 440-12 , Unit Acreage: 160, Drill Unit: NW4
Casing:String Type: SURF, Hole Size: 12.25 in., Size: 8.625 in., Top: , Depth: 325 ft., Weight: 24 , Citings Type: PLANNED
Cement:Sacks: 200, Top: 0 ft., Bottom: 325 ft.
Casing:String Type: 1ST, Hole Size: 7.875 in., Size: 5.5 in., Top: , Depth: 6662 ft., Weight: 17 , Citings Type: PLANNED
Cement:Sacks: 1180, Top: 3565 ft., Bottom: 6662 ft.

Wellbore Completed
Completion Date:8/2/1990
Measured TD:6679 ft.Measured PB depth:6510 ft.
True Vertical TD:0 ft.True Vertical PB depth:
Casing:String Type: SURF, Hole Size: 12.25 in., Size: 8.625 in., Top: 0 ft., Depth: 325 ft., Weight: , Citings Type: HISTORICAL
Cement:Sacks: 200, Top: 0 ft., Bottom: , Determination Method:
Casing:String Type: 1ST, Hole Size: 7.875 in., Size: 5.5 in., Top: 0 ft., Depth: 6661 ft., Weight: , Citings Type: HISTORICAL
Cement:Sacks: 0, Top: 0 ft., Bottom: , Determination Method:
FormationInterval TopLog BottomCoredDSTs
FORT UNION1638 ft.
MESAVERDE3348 ft.
CAMEO COAL5967 ft.
ROLLINS6452 ft.

Formation WFCM                     Formation Classification:  GW                     Status:  PR - 2/13/2014                 Interval Top: 4763 ft.    Interval Bottom: 6399 ft.

 Completed Information for Formation WILLIAMS FORK - CAMEO
1st Production Date:8/2/1990Choke Size: 
Formation Name:WILLIAMS FORK - CAMEOCommingled:
Production Method:
Open Hole Completion:
Formation Treatment
Treatment Date:12/24/1997
Treatment Summary:3400 GALS ACID; 2000 GALS 7 1/2% HCL; 1529200# 20/40 SAND; 7762 BBLS GEL; (SUMMARY)
Tubing Size:2.375 in.Tubing Setting Depth:5985 ft.
Tubing Packer Depth:Tubing Multiple Packer:
Open Hole Top:Open Hole Bottom:
Initial Test Data:
Test Date:12/24/1997Test Method:FLOWING
Hours Tested:24Gas Type:DRY
Gas Disposal:SOLD
Test TypeMeasure
BTU_GAS 1082
CALC_BBLS_H2O 5
CALC_BBLS_OIL 0
CALC_MCF_GAS 1488
CASING_PRESS 998
MCF_GAS 1488
TUBING_PRESS 893
Perforation Data:
Interval Top:4763 ft.# Of Holes:130
Interval Bottom:6399 ft.Hole Size:

Formation WSTC                     Formation Classification:  GW                     Status:  AB - 2/17/2009                 Interval Top: 1157 ft.    Interval Bottom: 1373 ft.

 Completed Information for Formation WASATCH
1st Production Date:12/5/2005Choke Size: 
Formation Name:WASATCHCommingled:
Production Method:
Open Hole Completion:
Formation Treatment
Treatment Date:2/17/2009
Treatment Summary:500 GALS 7 1/2% HCL; 249800# 20/40 SAND; 727 BBLS DELTA 140W (SUMMARY)
Formation Treatment
Treatment Date:11/15/2005
Treatment Summary:11/15/05 500 GALS 7 1/2% HCL, 249800# 20/40, 727 BBLS 20# DELTA 140W
Tubing Size:2.375 in.Tubing Setting Depth:1273 ft.
Tubing Packer Depth:Tubing Multiple Packer:
Open Hole Top:Open Hole Bottom:
Initial Test Data:
Test Date:12/15/2005Test Method:FLOWING
Hours Tested:24Gas Type:DRY
Gas Disposal:SOLD
Test TypeMeasure
BTU_GAS 1083
CALC_BBLS_H2O 0
CALC_BBLS_OIL 0
CALC_MCF_GAS 146
CASING_PRESS 75
MCF_GAS 146
Perforation Data:
Interval Top:1157 ft.# Of Holes:18
Interval Bottom:1373 ft.Hole Size:0.45 in.
Primary Well Designation:
None      i
            All DesignationsDate
Reported PluggedN 
Out Of Service RepurposedN 
Out Of ServiceN 
Inactive ExceptionN 
Noticed InactiveN 
Defined InactiveN 
Low ProducingN 

BOE/MCFE/GOR Calculations
Production for Previous 12 Months
November 2024 - October 2025i
Total Oil Produced (Barrels)26
Total Gas Produced (MCF)18944
GOR728615
GOR DeterminationMCFE
Average BOE per Day8.998
Average MCFE per Day52.180

 Federal Financial Assurance  i 

 Tribal Well  i No