Skip to Main Content

COGIS

Facility Detail

COGIS - WELL SCOUT CARD

Click image to view related facilities. Related  Click image to view inspection information. InspClick image to view MIT information. MITGIS Map GISOld GIS Map Old GISClick image to view imaged documents for this well/facility. DocClick image to view imaged documents for this well/facility. COAClick image to view wellbore completion diagram. WellboreClick image to search for orders within this facility's section. OrdersClick image to view bradenhead scoutcard data. Bradenhead
 Surface Location
 API# 05-045-06657
Well Classification: GW Status: PR - 12/1/1990
Well Name/No:DOE #1-W-17
(Click Well Name for Production Data)
Click Here for Transporter Gatherer Info
Operator:TEP ROCKY MOUNTAIN LLC - 96850
(Click Operator Name for Company Detail Report)
Federal Or State Lease #:
Facility Status:PRStatus Date12/1/1990
FacilityID:210899LocationID:335248
County:GARFIELD #045Location:SWSW 17 6S94W 6
Field:RULISON - #75400Elevation:5756 ft.
Basin:PICEANCE BASIN  
Planned Location:623FSL  623 FWLLat/Long: 39.519359 / -107.919101Lat/Long Source: Calculated From Footages
As Drilled Location:Footages Not AvailableLat/Long: 39.519647 / -107.918862Lat/Long Source: Field Measured
 Wellbore And Formation Details -- select either a wellbore Or formation to expand.
 

Wellbore #00             Wellbore Classification: GW             Status: PR - 12/1/1990             Measured TD: 3500 ft.    Vertical TD: 0 ft.

 Wellbore Data for Original WellboreWellbore Classification: GW        PR - 12/1/1990
Wellbore Permit
Permit #:900382 Expiration Date:8/15/1990
Proposed Depth/Form:
Surface Mineral Owner Same:Not available
Mineral Owner:FEDERALSurface Owner:Not available
Unit: Unit Number: 
Formation And Spacing:Code: WSTC , Formation: WASATCH , Order: 0 , Unit Acreage: 160, Drill Unit: SW4

Wellbore Completed
Completion Date:10/3/1990
Measured TD:3500 ft.Measured PB depth:3254 ft.
True Vertical TD:0 ft.True Vertical PB depth:
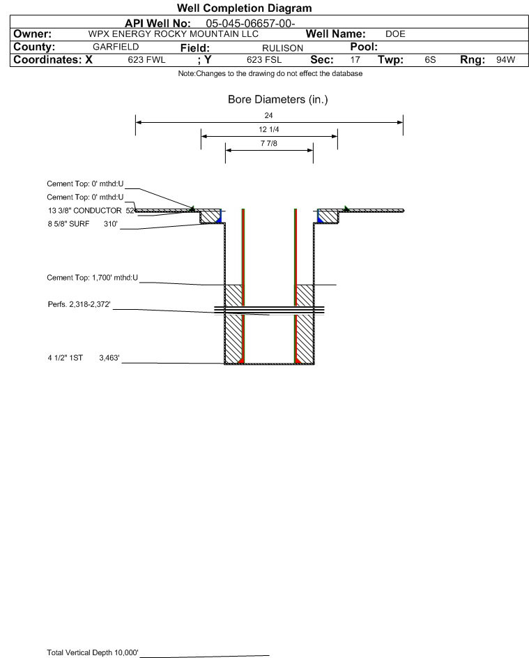
Casing:String Type: CONDUCTOR, Hole Size: 24 in., Size: 13.375 in., Top: 0 ft., Depth: 52 ft., Weight: , Citings Type: HISTORICAL
Cement:Sacks: , Top: 0 ft., Bottom: , Determination Method:
Casing:String Type: SURF, Hole Size: 12.25 in., Size: 8.625 in., Top: 0 ft., Depth: 310 ft., Weight: 24 , Citings Type: HISTORICAL
Cement:Sacks: 100, Top: 0 ft., Bottom: 310 ft., Determination Method:
Casing:String Type: 1ST, Hole Size: 7.875 in., Size: 4.5 in., Top: 0 ft., Depth: 3463 ft., Weight: 10.5 , Citings Type: HISTORICAL
Cement:Sacks: 450, Top: 1700 ft., Bottom: 3463 ft., Determination Method: CBL
FormationInterval TopLog BottomCoredDSTs
WASATCH2310 ft.

Formation WSTC                     Formation Classification:  GW                     Status:  PR - 12/1/1990                 Interval Top: 2318 ft.    Interval Bottom: 2372 ft.

 Completed Information for Formation WASATCH
1st Production Date:N/AChoke Size:1,464.000 in.
Formation Name:WASATCHCommingled:
Production Method:
Open Hole Completion:
Formation Treatment
Treatment Date:11/1/1990
Treatment Summary:Acidize w/1700 gal, Frac w/1690 bbl gelled wtr, 162000# 20/40 sand 18000# 16/30 resin-coated sand
Tubing Size:Tubing Setting Depth:
Tubing Packer Depth:Tubing Multiple Packer:
Open Hole Top:Open Hole Bottom:
Initial Test Data:
Test Date:12/1/1990Test Method:FLOWING
Hours Tested:24Gas Type:WET
Gas Disposal:SOLD
Test TypeMeasure
MCF_GAS 392
Perforation Data:
Interval Top:2318 ft.# Of Holes:54
Interval Bottom:2372 ft.Hole Size:
Primary Well Designation:
None      i
            All DesignationsDate
Reported PluggedN 
Out Of Service RepurposedN 
Out Of ServiceN 
Inactive ExceptionN 
Noticed InactiveN 
Defined InactiveN 
Low ProducingN 

BOE/MCFE/GOR Calculations
Production for Previous 12 Months
February 2025 - January 2026i
Total Oil Produced (Barrels)15
Total Gas Produced (MCF)12184
GOR812266
GOR DeterminationMCFE
Average BOE per Day5.784
Average MCFE per Day33.533

 Federal Financial Assurance  i 

 Tribal Well  i No