Skip to Main Content

COGIS

Facility Detail

COGIS - WELL SCOUT CARD

Click image to view related facilities. Related  Click image to view inspection information. InspClick image to view MIT information. MITClick image to access interactive map at well/facility location. GISClick image to view imaged documents for this well/facility. DocClick image to view imaged documents for this well/facility. COAClick image to view wellbore completion diagram. WellboreClick image to search for orders within this facility's section. OrdersClick image to view bradenhead scoutcard data. Bradenhead
 Surface Location
 API# 05-045-06653
Well Classification: CBM Status: PR - 9/16/2002
Well Name/No:UNION #GV 16-33A
(Click Well Name for Production Data)
Click Here for Transporter Gatherer Info
Operator:TEP ROCKY MOUNTAIN LLC - 96850
(Click Operator Name for Company Detail Report)
Federal Or State Lease #:12959
Facility Status:PRStatus Date9/16/2002
FacilityID:210895LocationID:311566
County:GARFIELD #045Location:NENW 33 6S96W 6
Field:GRAND VALLEY - #31290Elevation:5415 ft.
Basin:PICEANCE BASIN  
Planned Location:929FNL  1478 FWLLat/Long: 39.485148 / -108.117647Lat/Long Source: Calculated From Footages
As Drilled Location:Footages Not AvailableLat/Long: 39.485443 / -108.117591Lat/Long Source: Field Measured
 Wellbore And Formation Details -- select either a wellbore Or formation to expand.
 

Wellbore #00             Wellbore Classification: CBM             Status: PR - 9/16/2002             Measured TD: 6540 ft.

 Wellbore Data for Original WellboreWellbore Classification: CBM        PR - 9/16/2002
Wellbore Permit
Permit #:900299 Expiration Date:7/28/1990
Proposed Depth/Form:
Surface Mineral Owner Same:Not available
Mineral Owner:FEESurface Owner:Not available
Unit: Unit Number: 
Formation And Spacing:Code: WFCM , Formation: WILLIAMS FORK - CAMEO , Order: 0 , Unit Acreage: 160, Drill Unit: NW4

Wellbore Completed
Completion Date:9/14/2002
Spud Date:11/5/1998Spud Date Is:ACTUAL
Measured TD:6540 ft.Measured PB depth:6437 ft.
True Vertical TD:True Vertical PB depth:
Log Types:CASED HOLE DUAL SPACED NEUTRON
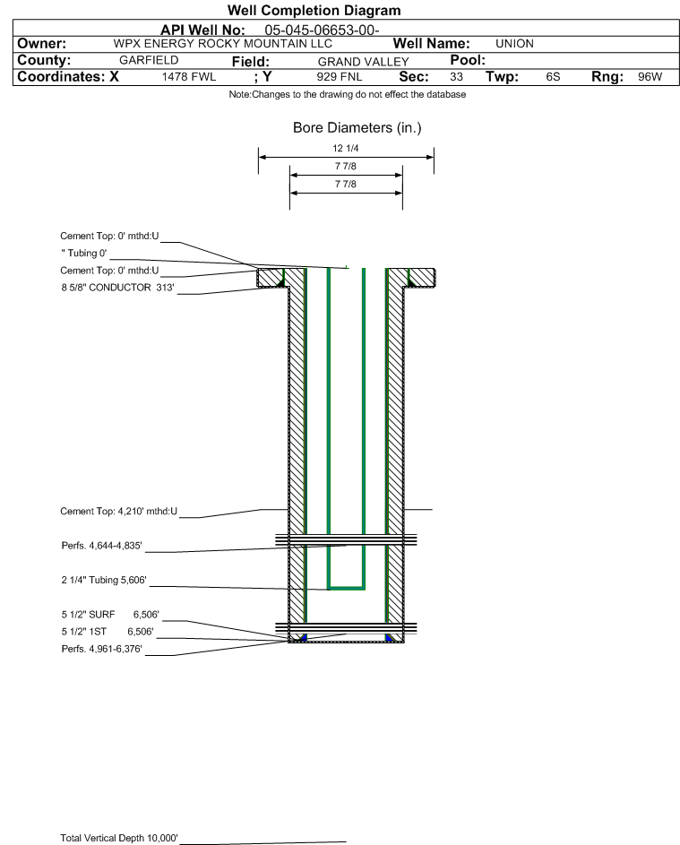
Casing:String Type: CONDUCTOR, Hole Size: 12.25 in., Size: 8.625 in., Top: 0 ft., Depth: 313 ft., Weight: 24 , Citings Type: ACTUAL
Cement:Sacks: 200, Top: 0 ft., Bottom: 313 ft., Determination Method:
Casing:String Type: SURF, Hole Size: 7.875 in., Size: 5.5 in., Top: 0 ft., Depth: 6506 ft., Weight: 17 , Citings Type: ACTUAL
Cement:Sacks: 925, Top: 4210 ft., Bottom: 6506 ft., Determination Method: CBL
Casing:String Type: 1ST, Hole Size: 7.875 in., Size: 5.5 in., Top: 0 ft., Depth: 6506 ft., Weight: , Citings Type: HISTORICAL
Cement:Sacks: 0, Top: 0 ft., Bottom: , Determination Method:
FormationInterval TopLog BottomCoredDSTs
WASATCH0 ft.
WASATCH G1730 ft.NN
FORT UNION2030 ft.NN
MESAVERDE3387 ft.NN
CAMEO COAL5924 ft.NN
ROLLINS6399 ft.NN

Formation CMEOC                   Formation Classification:  GW                   Status:  CM - 5/30/1990                 Interval Top: 5924 ft.

 Completed Information for Formation CAMEO COAL
1st Production Date:N/AChoke Size:3,064.000 in.
Formation Name:CAMEO COALCommingled:
Production Method:
Open Hole Completion:
Tubing Size:Tubing Setting Depth:
Tubing Packer Depth:Tubing Multiple Packer:
Open Hole Top:Open Hole Bottom:
No Initial Test Data was found for formation CMEOC.
No Perforation Data was found for formation CMEOC.

Formation WFCM                     Formation Classification:  GW                     Status:  PR - 9/16/2002                 Interval Top: 4961 ft.    Interval Bottom: 6376 ft.

 Completed Information for Formation WILLIAMS FORK - CAMEO
1st Production Date:N/AChoke Size:1.000 in.
Formation Name:WILLIAMS FORK - CAMEOCommingled:Yes
Production Method:FLOWING
Open Hole Completion:No
Formation Treatment
Treatment Date:9/14/2002
Treatment Summary:
Tubing Size:2.25 in.Tubing Setting Depth:5606 ft.
Tubing Packer Depth:Tubing Multiple Packer:
Open Hole Top:Open Hole Bottom:
Initial Test Data:
Test Date:9/16/2002Test Method:FLOWING
Hours Tested:24Gas Type:
Gas Disposal:SOLD
Test TypeMeasure
CALC_MCF_GAS 136
CASING_PRESS 466
MCF_GAS 136
TUBING_PRESS 231
Perforation Data:
Interval Top:4961 ft.# Of Holes:66
Interval Bottom:6376 ft.Hole Size:

Formation WMFK                     Formation Classification:  GW                     Status:  CM - 9/4/2002                  Interval Top: 4644 ft.    Interval Bottom: 4835 ft.

 Completed Information for Formation WILLIAMS FORK
1st Production Date:N/AChoke Size: 
Formation Name:WILLIAMS FORKCommingled:No
Production Method:
Open Hole Completion:No
Formation Treatment
Treatment Date:9/14/2002
Treatment Summary:TREATED PERFORMATIONS IN OCT, 1997 W/1000 GAL 7.5% HCL, 502,070# 20/40 SAND & 2392 BBLS GEL. SQUEEZED OFF PERFS 8/28/02; 4644' & 4698'. SQUEEEZED OFF PERFS 9/4/02;4754&4834'.
Tubing Size:Tubing Setting Depth:
Tubing Packer Depth:Tubing Multiple Packer:
Open Hole Top:Open Hole Bottom:
No Initial Test Data was found for formation WMFK.
Perforation Data:
Interval Top:4644 ft.# Of Holes:16
Interval Bottom:4835 ft.Hole Size:
Primary Well Designation:
Low Producing      i
            All DesignationsDate
Reported PluggedN 
Out Of Service RepurposedN 
Out Of ServiceN 
Inactive ExceptionN 
Noticed InactiveN 
Defined InactiveN 
Low ProducingYProduction Period
11/2024 - 10/2025

BOE/MCFE/GOR Calculations
Production for Previous 12 Months
November 2024 - October 2025i
Total Oil Produced (Barrels)0
Total Gas Produced (MCF)2980
GOR
GOR DeterminationMCFE
Average BOE per Day1.408
Average MCFE per Day8.166

 Federal Financial Assurance  i 

 Tribal Well  i No