Skip to Main Content

COGIS

Facility Detail

COGIS - WELL SCOUT CARD

Click image to view related facilities. Related  Click image to view inspection information. InspClick image to view MIT information. MITClick image to access interactive map at well/facility location. GISClick image to view imaged documents for this well/facility. DocClick image to view imaged documents for this well/facility. COAClick image to view wellbore completion diagram. WellboreClick image to search for orders within this facility's section. OrdersClick image to view bradenhead scoutcard data. Bradenhead
 Surface Location
 API# 05-045-06587
Well Classification: GW Status: PR - 9/15/1989
Well Name/No:DOE #1-W-29
(Click Well Name for Production Data)
Click Here for Transporter Gatherer Info
Operator:TEP ROCKY MOUNTAIN LLC - 96850
(Click Operator Name for Company Detail Report)
Federal Or State Lease #:12829
Facility Status:PRStatus Date9/15/1989
FacilityID:210829LocationID:335389
County:GARFIELD #045Location:NESE 29 6S95W 6
Field:PARACHUTE - #67350Elevation:5738 ft.
Basin:PICEANCE BASIN  
Planned Location:1500FSL  600 FELLat/Long: 39.492389 / -108.014644Lat/Long Source: Calculated From Footages
As Drilled Location:Footages Not AvailableLat/Long: 39.492349 / -108.014637Lat/Long Source: Field Measured
 Wellbore And Formation Details -- select either a wellbore Or formation to expand.
 

Wellbore #00             Wellbore Classification: GW             Status: PR - 9/15/1989             Measured TD: 3300 ft.    Vertical TD: 0 ft.

 Wellbore Data for Original WellboreWellbore Classification: GW        PR - 9/15/1989
Wellbore Permit
Permit #:890320 Expiration Date:9/7/1989
Proposed Depth/Form:
Surface Mineral Owner Same:Not available
Mineral Owner:FEESurface Owner:Not available
Unit: Unit Number: 
Formation And Spacing:Code: WSTC , Formation: WASATCH , Order: 0 , Unit Acreage: 160, Drill Unit: SE4

Wellbore Completed
Completion Date:9/16/1989
Measured TD:3300 ft.Measured PB depth:2791 ft.
True Vertical TD:0 ft.True Vertical PB depth:
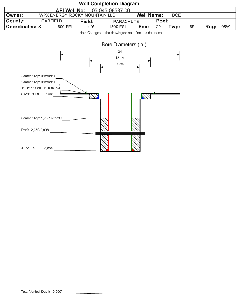
Casing:String Type: CONDUCTOR, Hole Size: 24 in., Size: 13.375 in., Top: 0 ft., Depth: 29 ft., Weight: , Citings Type: ACTUAL
Cement:Sacks: , Top: 0 ft., Bottom: 29 ft., Determination Method: VISU
Casing:String Type: SURF, Hole Size: 12.25 in., Size: 8.625 in., Top: 0 ft., Depth: 266 ft., Weight: 24 , Citings Type: ACTUAL
Cement:Sacks: 150, Top: 0 ft., Bottom: 266 ft., Determination Method: VISU
Casing:String Type: 1ST, Hole Size: 7.875 in., Size: 4.5 in., Top: 0 ft., Depth: 2884 ft., Weight: 10.5 , Citings Type: ACTUAL
Cement:Sacks: 600, Top: 1230 ft., Bottom: 2884 ft., Determination Method: CBL

Formation WSTC                     Formation Classification:  GW                     Status:  PR - 9/1/2012                  Interval Top: 2050 ft.    Interval Bottom: 2098 ft.

 Completed Information for Formation WASATCH
1st Production Date:N/AChoke Size:1,264.000 in.
Formation Name:WASATCHCommingled:
Production Method:
Open Hole Completion:
Formation Treatment
Treatment Date:9/15/1989
Treatment Summary:1000 gal 7.5% HCl, 69800 gal gelled water 111500# 12/20 sand
Tubing Size:2.375 in.Tubing Setting Depth:2150 ft.
Tubing Packer Depth:Tubing Multiple Packer:
Open Hole Top:Open Hole Bottom:
Initial Test Data:
Test Date:9/15/1989Test Method:FLOWING
Hours Tested:24Gas Type:WET
Gas Disposal:VENTED
Test TypeMeasure
MCF_GAS 1105
Perforation Data:
Interval Top:2050 ft.# Of Holes:37
Interval Bottom:2098 ft.Hole Size:0.36 in.
Primary Well Designation:
Low Producing      i
            All DesignationsDate
Reported PluggedN 
Out Of Service RepurposedN 
Out Of ServiceN 
Inactive ExceptionN 
Noticed InactiveN 
Defined InactiveN 
Low ProducingYProduction Period
11/2024 - 10/2025

BOE/MCFE/GOR Calculations
Production for Previous 12 Months
November 2024 - October 2025i
Total Oil Produced (Barrels)0
Total Gas Produced (MCF)2718
GOR
GOR DeterminationMCFE
Average BOE per Day1.282
Average MCFE per Day7.447

 Federal Financial Assurance  i Y

 Tribal Well  i No