Skip to Main Content

COGIS

Facility Detail

COGIS - WELL SCOUT CARD

Click image to view related facilities. Related  Click image to view inspection information. InspClick image to view MIT information. MITClick image to access interactive map at well/facility location. GISClick image to view imaged documents for this well/facility. DocClick image to view imaged documents for this well/facility. COAClick image to view wellbore completion diagram. WellboreClick image to search for orders within this facility's section. OrdersClick image to view bradenhead scoutcard data. Bradenhead
 Surface Location
 API# 05-045-06584
Well Classification: DSPW Status: PA - 6/17/2024
Well Name/No:Federal #DOE 1-W-27
(Click Well Name for Production Data)
Click Here for Transporter Gatherer Info
Operator:TEP ROCKY MOUNTAIN LLC - 96850
(Click Operator Name for Company Detail Report)
Federal Or State Lease #:62161
Facility Status:PAStatus Date6/17/2024
FacilityID:210826LocationID:335168
County:GARFIELD #045Location:LOT 6 27 6S95W 6
Field:PARACHUTE - #67350Elevation:5840 ft.
Basin:PICEANCE BASIN  
Planned Location:2112FNL  1280 FWLLat/Long: 39.496714 / -107.989134Lat/Long Source: Field Measured
As Drilled Location:Footages Not AvailableLat/Long: 39.496714 / -107.989134Lat/Long Source: Field Measured
 Wellbore And Formation Details -- select either a wellbore Or formation to expand.
 

Wellbore #00             Wellbore Classification: DSPW             Status: AB - 6/17/2024             Measured TD: 3650 ft.    Vertical TD: 0 ft.

 Wellbore Data for Original WellboreWellbore Classification: DSPW        AB - 6/17/2024
Wellbore PermitDIRECTIONAL
Permit #: Expiration Date:7/1/2015
Proposed Top PZ Location:Sec:27 Twp: 6S 95W Footage: 1814 FNL  1309 FWL
Bottom Hole Location:Sec:27 Twp: 6S 95W Footage: 1574 FNL  1393 FWL
Proposed Depth/Form:3650 ft.
Surface Mineral Owner Same:Yes
Mineral Owner:FEDERALSurface Owner:FEDERAL
Unit: Unit Number:
Formation And Spacing:Code: WSTC , Formation: WASATCH , Order: 440-12 , Unit Acreage: 160, Drill Unit: Sec. 27: NW/4
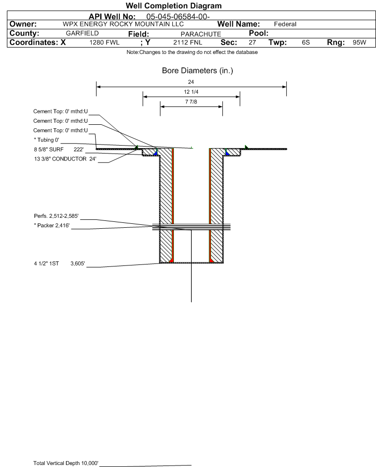
Casing:String Type: CONDUCTOR, Hole Size: 24 in., Size: 13.375 in., Top: 0 ft., Depth: 24 ft., Weight: 24 , Citings Type: PLANNED
Cement:Sacks: , Top: 0 ft., Bottom: 24 ft.
Casing:String Type: SURF, Hole Size: 12.25 in., Size: 8.625 in., Top: 0 ft., Depth: 222 ft., Weight: 24 , Citings Type: PLANNED
Cement:Sacks: 140, Top: , Bottom: 222 ft.
Casing:String Type: 1ST, Hole Size: 7.875 in., Size: 4.5 in., Top: 0 ft., Depth: 3605 ft., Weight: 10.5 , Citings Type: PLANNED
Cement:Sacks: 400, Top: , Bottom: 3605 ft.

Wellbore Completed
Completion Date:10/20/1989
Measured TD:3650 ft.Measured PB depth:3546 ft.
True Vertical TD:0 ft.True Vertical PB depth:
Top PZ Location:Sec:27 Twp: 6S 95WFootage: 1814 FNL  1309 FWL
Casing:String Type: CONDUCTOR, Hole Size: , Size: 13.375 in., Top: 0 ft., Depth: 24 ft., Weight: 24 , Citings Type: ACTUAL
Cement:Sacks: , Top: 0 ft., Bottom: 24 ft., Determination Method: VISU
Casing:String Type: SURF, Hole Size: 12.25 in., Size: 8.625 in., Top: 0 ft., Depth: 222 ft., Weight: 24 , Citings Type: ACTUAL
Cement:Sacks: 140, Top: 0 ft., Bottom: 222 ft., Determination Method: VISU
Casing:String Type: 1ST, Hole Size: 7.875 in., Size: 4.5 in., Top: 0 ft., Depth: 3605 ft., Weight: 10.5 , Citings Type: ACTUAL
Cement:Sacks: 400, Top: 2049 ft., Bottom: 3605 ft., Determination Method: CBL

Formation WSTC                     Formation Classification:  DSPW                     Status:  AB - 6/17/2024                 Interval Top: 2512 ft.    Interval Bottom: 2585 ft.

 Completed Information for Formation WASATCH
1st Production Date:2/16/2014Choke Size: 
Formation Name:WASATCHCommingled:
Production Method:
Open Hole Completion:
Formation Treatment
Treatment Type:
Treatment Date:6/26/2014Treatment End Date:N/A
Treatment Summary:set packer at 2436 and inject into existing perfs. Changing status from Producing to Injecting.
Total fluid used in treatment (bbls):Max pressure during treatment (psi):
Total gas used in treatment (mcf):Fluid density (lbs/gal):
Type Of gas:Number Of staged intervals:
Total acid used in treatment (bbls):Min frac gradient (psi/ft):
Recycled water used in treatment (bbls):Total flowback volume recovered (bbls):
Fresh water used in treatment (bbls):Disposition method For flowback:
Total proppant used (lbs):Green completions techniques utilized:--
Reason green techniques Not utilized: 
Tubing Size:Tubing Setting Depth:
Tubing Packer Depth:2436 ft.Tubing Multiple Packer:
Open Hole Top:Open Hole Bottom:
Initial Test Data:
Test Date:10/19/1989Test Method:FLOWING
Hours Tested:24Gas Type:WET
Gas Disposal:VENTED
Test TypeMeasure
MCF_GAS 1421
Perforation Data:
Interval Top:2512 ft.# Of Holes:25
Interval Bottom:2585 ft.Hole Size:0.36 in.
Primary Well Designation:
None      i
            All DesignationsDate
Reported PluggedY06/17/2024
Out Of Service RepurposedN 
Out Of ServiceYPlugging Due Date
12/31/2028
Inactive ExceptionN 
Noticed InactiveN 
Defined InactiveN 
Low ProducingN 

BOE/MCFE/GOR Calculations
Production for Previous 12 Months
November 2024 - October 2025i
Total Oil Produced (Barrels)0
Total Gas Produced (MCF)0
GOR
GOR Determination 
Average BOE per Day0.000
Average MCFE per Day0.000

 Federal Financial Assurance  i Y

 Tribal Well  i No