Skip to Main Content

COGIS

Facility Detail

COGIS - WELL SCOUT CARD

Click image to view related facilities. Related  Click image to view inspection information. InspClick image to view MIT information. MITGIS Map GISOld GIS Map Old GISClick image to view imaged documents for this well/facility. DocClick image to view imaged documents for this well/facility. COAClick image to view wellbore completion diagram. WellboreClick image to search for orders within this facility's section. OrdersClick image to view bradenhead scoutcard data. Bradenhead
 Surface Location
 API# 05-045-06501
Well Classification: GW Status: SI - 2/1/2026
Well Name/No:GRAND VALLEY-FEDERAL #MV-5-10
(Click Well Name for Production Data)
Click Here for Transporter Gatherer Info
Operator:TEP ROCKY MOUNTAIN LLC - 96850
(Click Operator Name for Company Detail Report)
Federal Or State Lease #:12873
Facility Status:SIStatus Date2/1/2026
FacilityID:210743LocationID:322536
County:GARFIELD #045Location:SENW 10 7S96W 6
Field:GRAND VALLEY - #31290Elevation:6135 ft.
Basin:PICEANCE BASIN  
Planned Location:2178FNL  2731 FELLat/Long: 39.452739 / -108.096606Lat/Long Source: Calculated From Footages
As Drilled Location:Footages Not AvailableLat/Long: 39.452936 / -108.096674Lat/Long Source: Field Measured
 Wellbore And Formation Details -- select either a wellbore Or formation to expand.
 

Wellbore #00             Wellbore Classification: GW             Status: SI - 2/1/2026             Measured TD: 7385 ft.    Vertical TD: 0 ft.

 Wellbore Data for Original WellboreWellbore Classification: GW        SI - 2/1/2026
Wellbore Permit
Permit #:850427 Expiration Date:8/2/1985
Proposed Depth/Form:
Surface Mineral Owner Same:Not available
Mineral Owner:FEDERALSurface Owner:Not available
Unit: Unit Number:C-24603
Formation And Spacing:Code: WFCM , Formation: WILLIAMS FORK - CAMEO , Order: 0 , Unit Acreage: 160, Drill Unit: NW4

Wellbore Completed
Completion Date:10/8/1987
Measured TD:7385 ft.Measured PB depth:6364 ft.
True Vertical TD:0 ft.True Vertical PB depth:
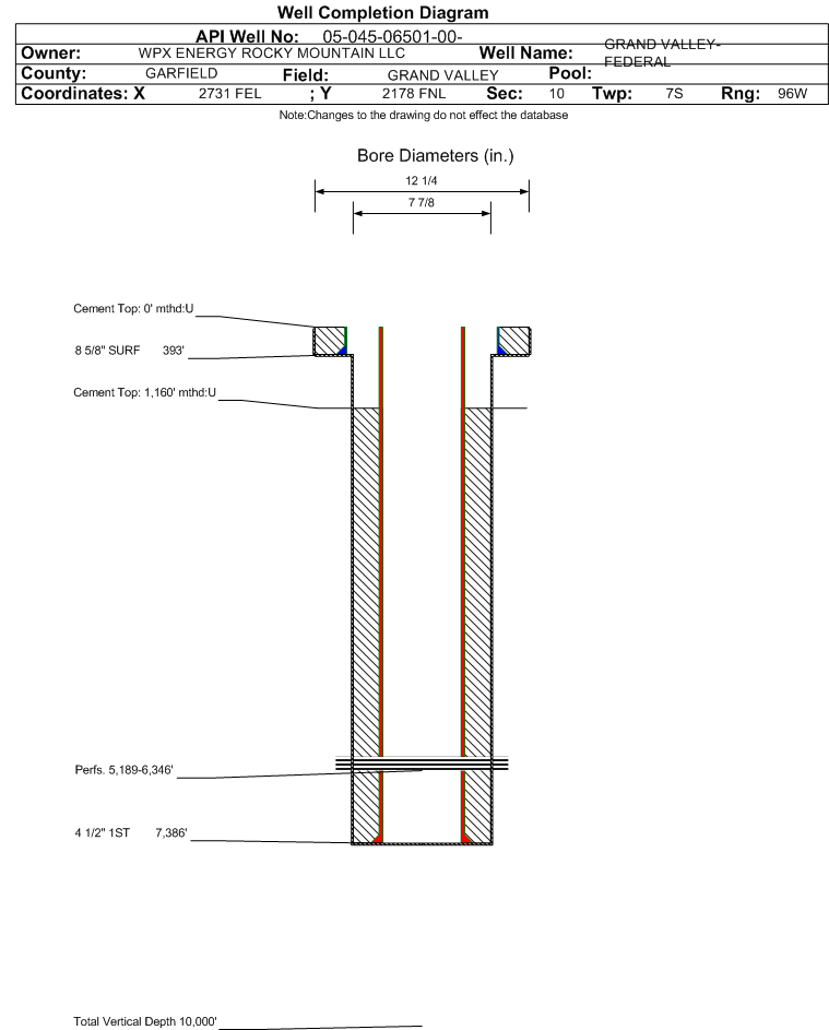
Casing:String Type: SURF, Hole Size: 12.25 in., Size: 8.625 in., Top: 0 ft., Depth: 393 ft., Weight: , Citings Type: HISTORICAL
Cement:Sacks: 225, Top: 0 ft., Bottom: , Determination Method:
Casing:String Type: 1ST, Hole Size: 7.875 in., Size: 4.5 in., Top: 0 ft., Depth: 7386 ft., Weight: , Citings Type: ACTUAL
Cement:Sacks: 0, Top: 1160 ft., Bottom: , Determination Method: CBL
Additional Cement:String Type: S.C. 1.1 , Top: 2900 ft., Depth: 3775 ft., Bottom: 3775 ft., Sacks: 190, Method:
Additional Cement:String Type: S.C. 1.2 , Top: 3775 ft., Depth: 5980 ft., Bottom: 5980 ft., Sacks: 150, Method:
FormationInterval TopLog BottomCoredDSTs
FORT UNION2390 ft.
CAMEO6220 ft.
ROLLINS6635 ft.
COZZETTE6895 ft.
CORCORAN7200 ft.

Formation WFCM                     Formation Classification:  GW                     Status:  SI - 2/1/2026                  Interval Top: 5189 ft.    Interval Bottom: 6346 ft.

 Completed Information for Formation WILLIAMS FORK - CAMEO
1st Production Date:9/22/1986Choke Size:0.000 in.
Formation Name:WILLIAMS FORK - CAMEOCommingled:
Production Method:
Open Hole Completion:
Tubing Size:Tubing Setting Depth:
Tubing Packer Depth:Tubing Multiple Packer:
Open Hole Top:Open Hole Bottom:
No Initial Test Data was found for formation WFCM.
Perforation Data:
Interval Top:5189 ft.# Of Holes:72
Interval Bottom:6346 ft.Hole Size:
Primary Well Designation:
None      i
            All DesignationsDate
Reported PluggedN 
Out Of Service RepurposedN 
Out Of ServiceN 
Inactive ExceptionN 
Noticed InactiveN 
Defined InactiveN 
Low ProducingN 

BOE/MCFE/GOR Calculations
Production for Previous 12 Months
February 2025 - January 2026i
Total Oil Produced (Barrels)10
Total Gas Produced (MCF)5489
GOR548900
GOR DeterminationMCFE
Average BOE per Day2.634
Average MCFE per Day15.271

 Federal Financial Assurance  i Y

 Tribal Well  i No