Skip to Main Content

COGIS

Facility Detail

COGIS - WELL SCOUT CARD

Click image to view related facilities. Related  Click image to view inspection information. InspClick image to view MIT information. MITClick image to access interactive map at well/facility location. GISClick image to view imaged documents for this well/facility. DocClick image to view imaged documents for this well/facility. COAClick image to view wellbore completion diagram. WellboreClick image to search for orders within this facility's section. OrdersClick image to view bradenhead scoutcard data. Bradenhead
 Surface Location
 API# 05-045-06300
Well Classification: GW Status: PR - 3/19/1998
Well Name/No:CLOUGH #19
(Click Well Name for Production Data)
Click Here for Transporter Gatherer Info
Operator:TEP ROCKY MOUNTAIN LLC - 96850
(Click Operator Name for Company Detail Report)
Federal Or State Lease #:12912
Facility Status:PRStatus Date3/19/1998
FacilityID:210544LocationID:322456
County:GARFIELD #045Location:SENE 20 6S94W 6
Field:RULISON - #75400Elevation:5447 ft.
Basin:PICEANCE BASIN  
Planned Location:1787FNL  1114 FELLat/Long: 39.512989 / -107.906751Lat/Long Source: Calculated From Footages
As Drilled Location:Footages Not AvailableLat/Long: 39.513029 / -107.906754Lat/Long Source: Field Measured
 Wellbore And Formation Details -- select either a wellbore Or formation to expand.
 

Wellbore #00             Wellbore Classification: GW             Status: PR - 3/19/1998             Measured TD: 7265 ft.    Vertical TD: 0 ft.

 Wellbore Data for Original WellboreWellbore Classification: GW        PR - 3/19/1998
Wellbore Permit
Permit #:801757 Expiration Date:4/4/1981
Proposed Depth/Form:
Surface Mineral Owner Same:Not available
Mineral Owner:FEESurface Owner:Not available
Unit: Unit Number:C-27867&27868
Formation And Spacing:Code: WMFK , Formation: WILLIAMS FORK , Order: 0 , Unit Acreage: 320, Drill Unit: E2

Wellbore Completed
Completion Date:2/24/1995
Measured TD:7265 ft.Measured PB depth:0 ft.
True Vertical TD:0 ft.True Vertical PB depth:
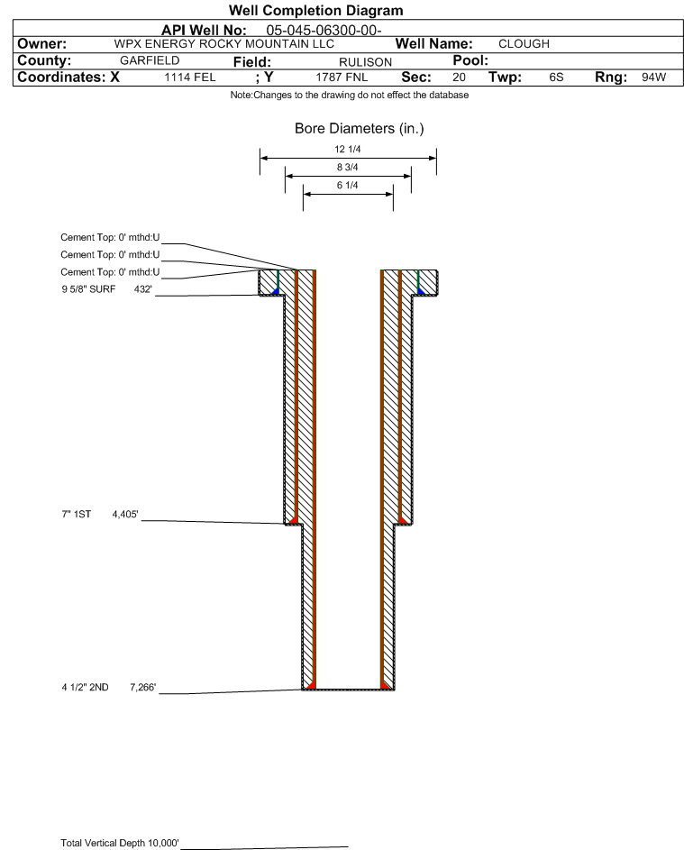
Casing:String Type: SURF, Hole Size: 12.25 in., Size: 9.625 in., Top: 0 ft., Depth: 432 ft., Weight: , Citings Type: HISTORICAL
Cement:Sacks: 160, Top: 0 ft., Bottom: , Determination Method:
Casing:String Type: 1ST, Hole Size: 8.75 in., Size: 7 in., Top: 0 ft., Depth: 4405 ft., Weight: , Citings Type: HISTORICAL
Cement:Sacks: 0, Top: 0 ft., Bottom: , Determination Method:
Casing:String Type: 2ND, Hole Size: 6.25 in., Size: 4.5 in., Top: 0 ft., Depth: 7266 ft., Weight: , Citings Type: HISTORICAL
Cement:Sacks: 0, Top: 0 ft., Bottom: , Determination Method:
FormationInterval TopLog BottomCoredDSTs
MESAVERDE4253 ft.
CAMEO COAL6948 ft.

Formation WMFK                     Formation Classification:  GW                     Status:  PR - 3/19/1998

 Completed Information for Formation WILLIAMS FORK
1st Production Date:2/24/1995Choke Size:0.000 in.
Formation Name:WILLIAMS FORKCommingled:
Production Method:
Open Hole Completion:
Tubing Size:Tubing Setting Depth:
Tubing Packer Depth:Tubing Multiple Packer:
Open Hole Top:Open Hole Bottom:
No Initial Test Data was found for formation WMFK.
No Perforation Data was found for formation WMFK.
Primary Well Designation:
None      i
            All DesignationsDate
Reported PluggedN 
Out Of Service RepurposedN 
Out Of ServiceN 
Inactive ExceptionN 
Noticed InactiveN 
Defined InactiveN 
Low ProducingN 

BOE/MCFE/GOR Calculations
Production for Previous 12 Months
November 2024 - October 2025i
Total Oil Produced (Barrels)33
Total Gas Produced (MCF)11617
GOR352030
GOR DeterminationMCFE
Average BOE per Day5.581
Average MCFE per Day32.367

 Federal Financial Assurance  i 

 Tribal Well  i No