|
|
| |
|
|
|
|
Wellbore #00 Wellbore Classification: GW Status: PR - 11/24/1995 Measured TD: 7050 ft. Vertical TD: 0 ft.| Wellbore Data for Original Wellbore | Wellbore Classification: GW PR - 11/24/1995 | | Wellbore Permit | | | Permit #: | 790852 | Expiration Date: | 12/21/1979 | | Proposed Depth/Form: | | | Surface Mineral Owner Same: | Not available | | Mineral Owner: | FEE | Surface Owner: | Not available | | Unit: | | Unit Number: | | | Formation And Spacing: | Code: WMFK , Formation: WILLIAMS FORK , Order: 0 , Unit Acreage: 320, Drill Unit: N2 |
| | |
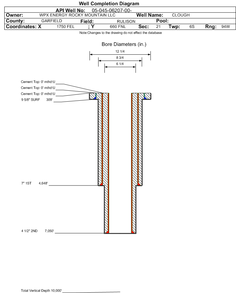
| Wellbore Completed | | Completion Date: | 2/6/1995 | | Measured TD: | 7050 ft. | Measured PB depth: | 5825 ft. | | True Vertical TD: | 0 ft. | True Vertical PB depth: | | | Casing: | String Type: SURF, Hole Size: 12.25 in., Size: 9.625 in., Top: 0 ft., Depth: 309 ft., Weight: , Citings Type: HISTORICAL | | Cement: | Sacks: 200, Top: 0 ft., Bottom: , Determination Method: | | Casing: | String Type: 1ST, Hole Size: 8.75 in., Size: 7 in., Top: 0 ft., Depth: 4648 ft., Weight: , Citings Type: HISTORICAL | | Cement: | Sacks: 0, Top: 0 ft., Bottom: , Determination Method: | | Casing: | String Type: 2ND, Hole Size: 6.25 in., Size: 4.5 in., Top: 0 ft., Depth: 7050 ft., Weight: , Citings Type: HISTORICAL | | Cement: | Sacks: 0, Top: 0 ft., Bottom: , Determination Method: | | Formation | Interval Top | Log Bottom | Cored | DSTs | | MESAVERDE | 4230 ft. | | | | | CAMEO COAL | 6993 ft. | | | |
Formation WMFK Formation Classification: GW Status: PR - 11/24/1995| Completed Information for Formation WILLIAMS FORK | | 1st Production Date: | 2/6/1995 | Choke Size: | 0.000 in. | | Formation Name: | WILLIAMS FORK | Commingled: | | | Production Method: | | | Open Hole Completion: | |
| | Tubing Size: | | Tubing Setting Depth: | | | Tubing Packer Depth: | | Tubing Multiple Packer: | | | Open Hole Top: | | Open Hole Bottom: | | | No Initial Test Data was found for formation WMFK. |
| | No Perforation Data was found for formation WMFK. |
|
|
|
|
|
|
|
| Reported Plugged | N | |
| Out Of Service Repurposed | N | |
| Out Of Service | N | |
| Inactive Exception | N | |
| Noticed Inactive | N | |
| Defined Inactive | N | |
| Low Producing | N | |
| Total Oil Produced (Barrels) | 11 |
| Total Gas Produced (MCF) | 8442 |
| GOR | 767454 |
| GOR Determination | MCFE |
| Average BOE per Day | 4.015 |
| Average MCFE per Day | 23.317 |
| Federal Financial Assurance | i | |
|
|